For a design class at Princeton, I was on a team tasked with designing and constructing an aluminum monocoque structure that was meant to be a model of an airplane wingbox.

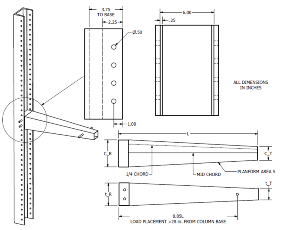
The objective of this lightweight "boxlift crane" was to be under 3 lbs, and support 500 lbs located at 85 percent of its total length, measured away from the column to which it was attached. This load was applied at two different lateral locations: at the mid chord line (a tension test), and at the quarter chord line (a torsion test).

Additionally, the load placement was required to be at least 28 inches away from the base of the column. The crane itself had to have a root chord length (C_R) of 6 inches, a root thickness (t_R) of less than 5 inches, and a tip thickness (t_T) of less than 3 inches. Furthermore, the crane had to be tapered in planform, with a taper ratio (C_T/C_R) between 0.5 and 0.75, and an aspect ratio L^2/S, where L is length and S is area, of greater than 6.5.

Our design met and exceeded specifications by weighing 2 lbs, 16 ounces, and only undergoing plastic deformation at a loading in excess of 715 lbs!